Direkt zum Inhalt
Toggle navigation
Projekt
Ausstattung
Lage
Wohnungen & Navigator
Besichtigung
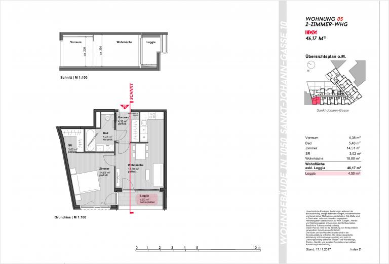
5
Margarete
Geschoss:
1
Zimmer:
2
Wohnfläche:
46,17 m²
Loggien:
4.50m²
Betriebkosten:
1.90€ pro m²
Bruttomiete:
798 €
Status:
Vermietet
Besichtigung vereinbaren
Zurück zur Übersicht
Zurück zur Übersicht
Projekt
Ausstattung
Lage
Home
Wohnungen & Navigator
Besichtigung