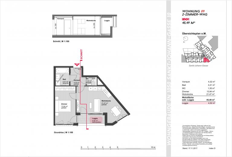
9
Geschoss: 
1
Zimmer: 
2
Wohnfläche: 
45,49 m²
Loggien: 
4.52m²
Betriebkosten: 
1.90€ pro m²
Bruttomiete: 
775 €
Status: